Please enable JavaScript to view this site.

While creating a new drawing, a system view at the scale 1:1 is generated automatically.

Parameters of the system view can’t be changed. Therefore, if it is required to create an image at a scale different from 1:1 in a drawing, it is necessary first to create a new view at the required scale.

If you use the same scale for most drawings, then creation of a respective view in each drawing is not reasonable. To make it so that a view is immediately available at the required scale in each new drawing, create a drawing template, and within it, a view at the required scale. You can select a template manually when creating a drawing or connect it for default use. More details about templates...

If it is required to change the scale of an existing view in the drawing, do the following actions:

1.Invoke the Scale... command from the view’s context menu in the Drawing Design Tree.

2.Select the required scale from the list that appears.

After that, the geometrical objects (segments, arcs, etc.) contained in the view will be rebuilt – they will increase or decrease as per the set scale. At the same time, the thickness of lines, length of arrows, font height in the captions, the sizes of signages, etc. will not change. The size values will also remain the same.

The scaling center of the view is the center of the bounding rectangle or contour of the view.

If a view contains leader lines and/or extension lines of sizes, then after change of scale the screen displays a request for scaling these objects. You can confirm scaling or refuse it. Details...

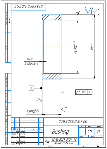
An example of reducing the scale of a bushing image is shown in the figure.

a)

b)

Changing the view scale:
a) initial scale 2:1, b) final scale 1:1

If necessary, you can set an arbitrary scale of a view while editing its parameters, or using the Scalingcommand.

The result of the Scaling command execution is not a simple scaling of objects, but a change of scale of a view.

See Also

View placement...

© ASCON-Design systems, LLC (Russia), 2025. All rights reserved.