Please enable JavaScript to view this site.

При создании нового чертежа в нем автоматически формируется системный вид с масштабом 1:1.

Параметры системного вида изменить невозможно. Поэтому, если в чертеже требуется создать изображение в масштабе, отличном от 1:1, необходимо сначала создать новый вид с нужным масштабом.

Если вы используете один и тот же масштаб для большинства чертежей, то создание соответствующего вида в каждом чертеже нерационально. Чтобы в каждом новом чертеже сразу был вид с требуемым масштабом, создайте шаблон чертежа, а в нем — вид с нужным масштабом. Шаблон можно выбирать вручную при создании чертежа или подключить для использования по умолчанию. Подробнее о шаблонах...

Если требуется изменить масштаб уже имеющегося в чертеже вида, выполните следующие действия:

1.Вызовите команду Масштаб... из контекстного меню вида в Дереве построения чертежа.

2.Выберите нужный масштаб из появившегося списка.

После этого геометрические объекты (отрезки, дуги и т.п.), содержащиеся в виде, перестроятся — увеличатся или уменьшатся в соответствии с заданным масштабом. В то же время толщина линий, длина стрелок, высота шрифта в надписях, размеры знаков и т.п. не изменятся. Значения размеров также останутся прежними.

Точкой центра масштабирования вида является центр габаритного прямоугольника вида.

Если вид содержит выносные линии и/или линии-выноски размеров, то после изменения масштаба на экране появляется запрос на масштабирование этих объектов. Вы можете подтвердить масштабирование или отказаться от него. Подробнее...

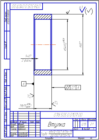
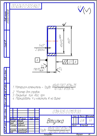
На рисунке приведен пример уменьшения масштаба изображения втулки.

а)

б)

Изменение масштаба вида:
а) исходный масштаб 2:1, б) конечный масштаб 1:1

При необходимости можно задать произвольный масштаб вида при редактировании его параметров или с помощью команды Масштабирование.

Результатом выполнения команды Масштабирование является не простое масштабирование объектов, а изменение масштаба вида.

Смотрите также

Положение вида...

© ООО «АСКОН-Системы проектирования», 2026. Все права защищены. | Единая телефонная линия: 8-800-700-00-78